GLOVO (Delivery Hero) – Fahed Building
Start-up technologique internationale spécialisée dans la livraison de repas en Tunisie
En 2025, Galerie des Décors a livré pour Glovo (Delivery Hero), start-up technologique internationale spécialisée dans la livraison de repas, un projet clé en main de 570 m² de surface utile, dans un délai record de 3 mois. Ce chantier Core& Shell, sans aucune installation passive préalable pour le MEP, a été intégralement conçu et exécuté pour offrir un environnement de travail moderne et performant.
Conception & études
- Croquis 2D et rendus 3D immersifs
- Plans d’aménagement complets, spécifications techniques et dossier d’exécution détaillé
- Coordination des études techniques pour les lots fluides et électriques
Travaux & installations
- Démolition et préparation complète du site
- Design et aménagement intérieur de l’ensemble des espaces
- Lot Fluide & climatisation : de l’étude à la livraison et validation
- Lot Électricité : conception, installation et mise en service
- Design & fit-out : faux plafonds, cloisonnement en placoplâtre, portes et sols
Mobilier & finitions
- Sélection et installation de mobilier ergonomique et esthétique
- Finitions soignées garantissant confort, durabilité et cohérence avec l’identité visuelle du client
Résultat final
- Un siège moderne et collaboratif, pensé pour favoriser la productivité, la créativité et le bien-être des équipes.
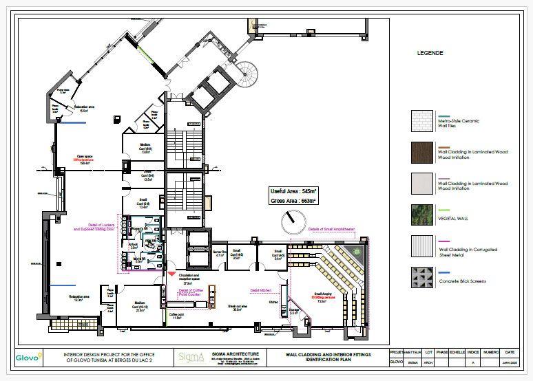
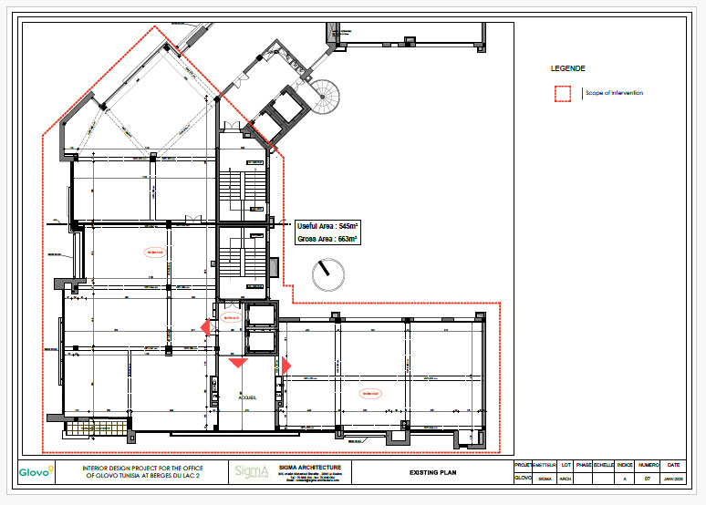
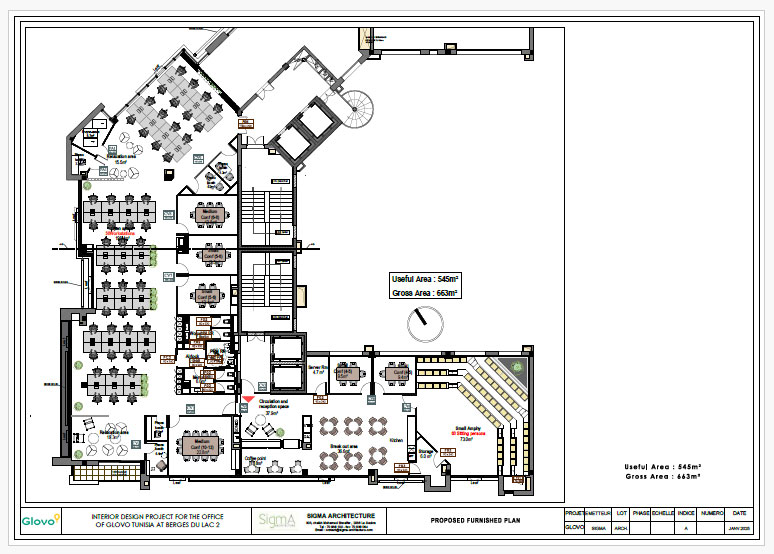
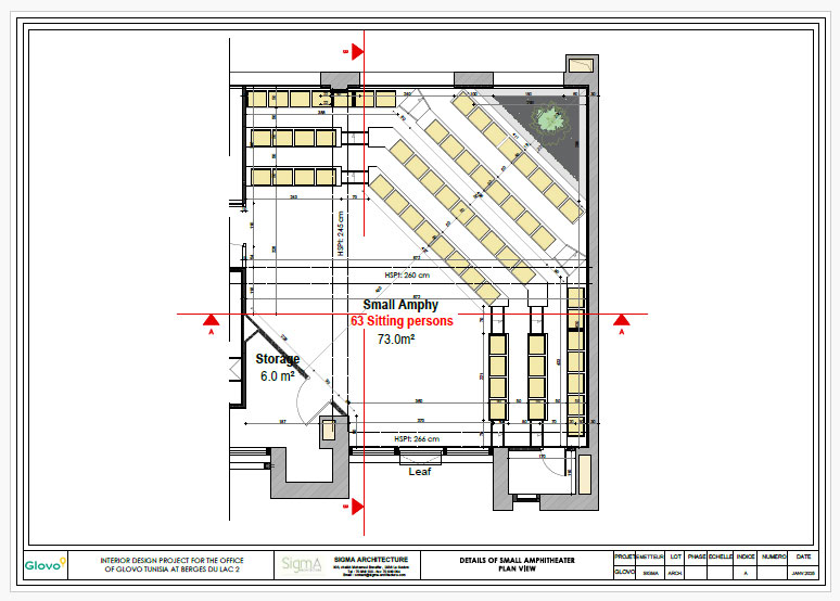
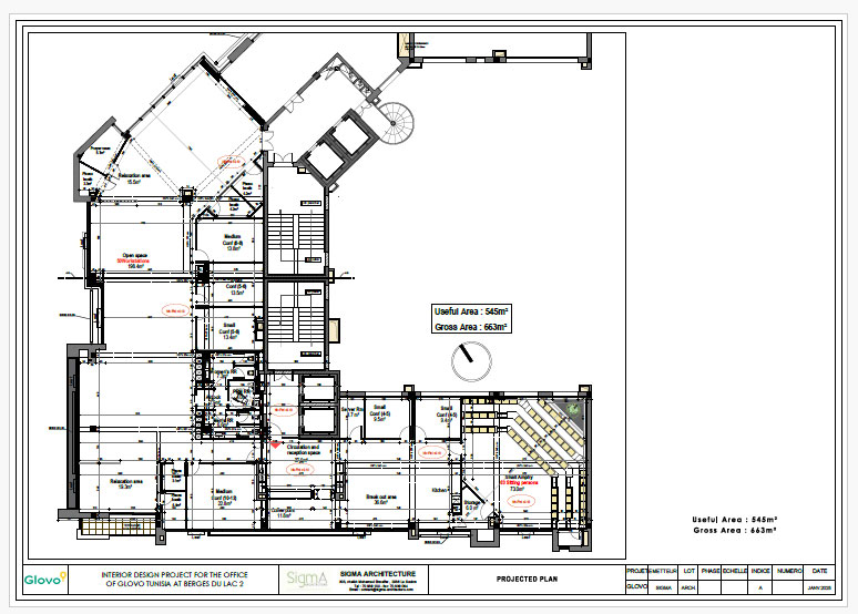
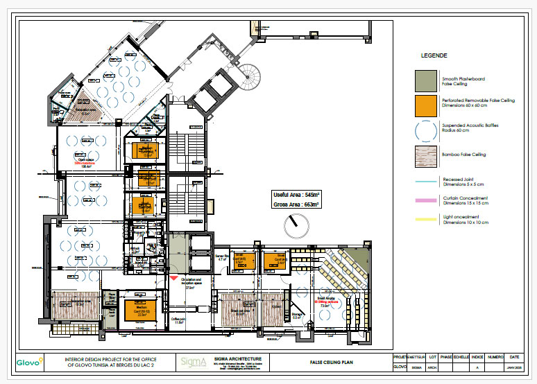
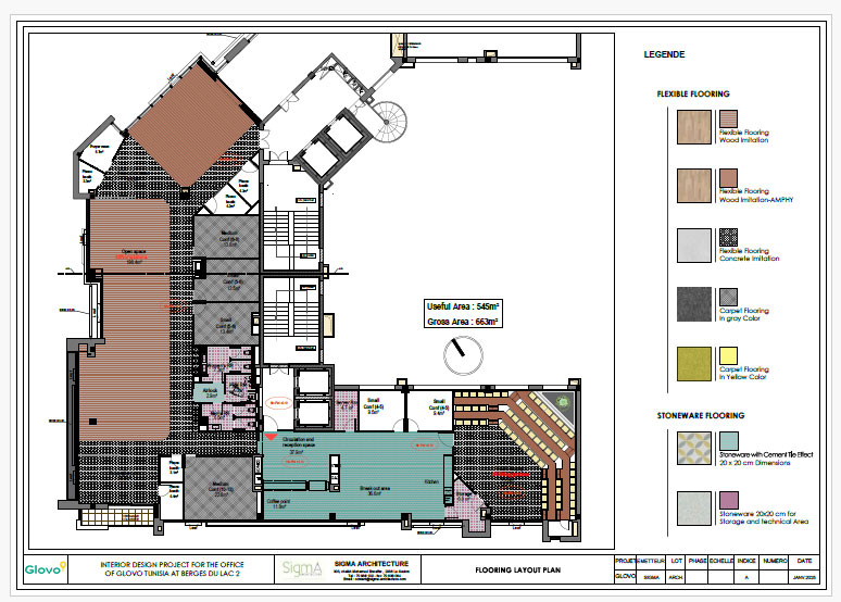
Plans et Conception Technique
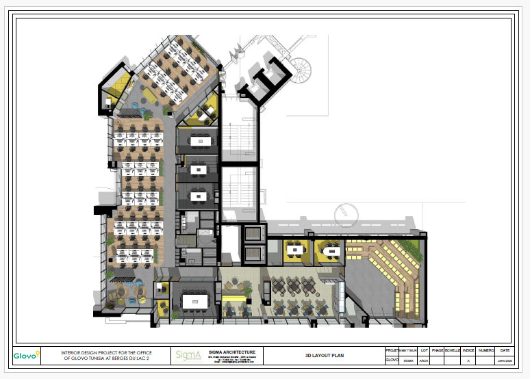
Rendus 3D Photoréalistes
Vivez le projet avec nous du plan à la réalité
Découvrez en images chaque étape de notre travail : de la préparation du chantier aux finitions, jusqu’au résultat final.
Un aperçu fidèle de notre savoir-faire et de la transformation de vos projets.